News
Home
Projekte
Büro
Kontakt
Impressum
Datenschutz
News
Home
Projekte
Büro
Kontakt
Impressum
Datenschutz
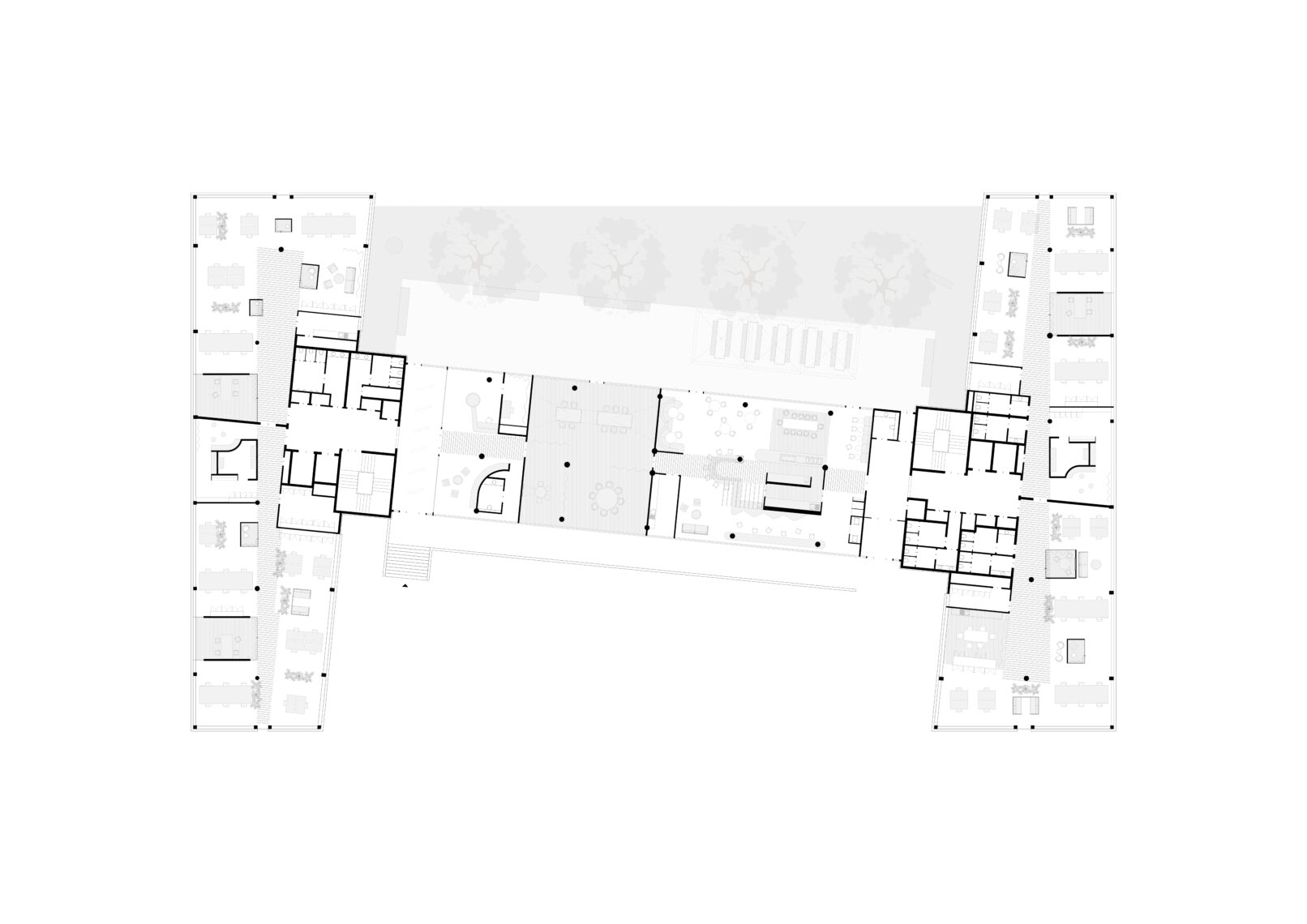
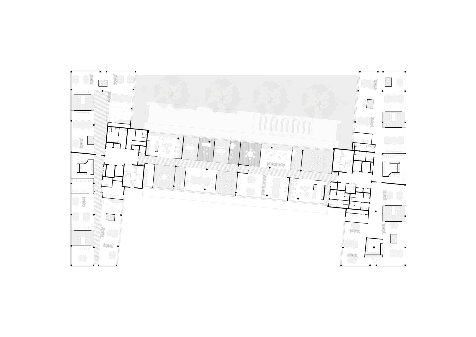
Büroumbau in Stuttgart
Neue Arbeitswelten
Fertigstellung
2023
Leistungsphasen
1-9
BGF
5.300 qm
Veröffentlichung
AIT 4.2024
Grafik: ©schleicher.ragaller
Fotografie: ©schleicher.ragaller
Fotografie: ©schleicher.ragaller
Fotografie: ©schleicher.ragaller
Grafik: ©schleicher.ragaller
Fotografie: ©schleicher.ragaller
Fotografie: ©schleicher.ragaller
Fotografie: ©schleicher.ragaller
Fotografie: ©schleicher.ragaller
Fotografie: ©schleicher.ragaller
Fotografie: ©schleicher.ragaller
Previous project
Next project